• Agence
    • Nous
    • Vous
    • Savoir-faire
  • LabClimat
  • Réalisations
  • Médias
  • Publications
  • Jobs
  • Contact
  • Typologies
    • Logements
    • Bureaux
    • Réhabilitations
    • Mobilité
    • Commerce Equipement
    • Industrie
    • Tours
    • Urbanisme Paysage
    • Design
    • Mixité
    • Bureau Therapy
  • Mentions légales
  • Cookies

Dreamview

En savoir plus

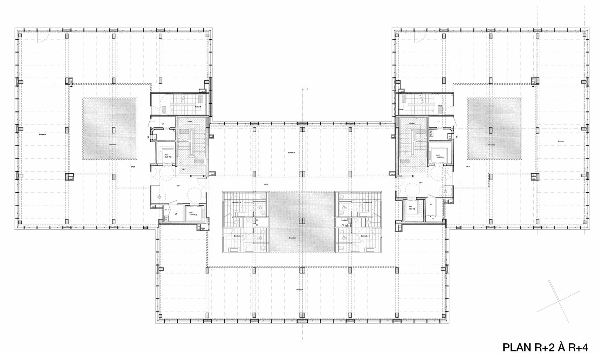
Restructuration lourde d'un bâtiment des années 1980

Le 132 Rue des Trois Fontanot occupe une situation stratégique à Nanterre, à la frontière du nouveau quartier des Terrasses de l’Arche et de la Défense, et bénéficie d’une vue imprenable sur le quartier d’affaires et d’un panorama unique et dégagé sur l’arche de la Défense.

Le projet de 8.000 m² SDP consiste en une restructuration lourde d’un bâtiment existant datant des années 80 qui permet :

Une nouvelle identité pour cet immeuble d’une architecture datée : requalification de la séquence d’accès au bâtiment, réaménagement du patio sur l’axe du bâtiment, traitement de la perception piétonne des stationnements existants en Rez-de-chaussée par un jeu de  grilles travaillées venant constituer une façade écran. Le hall existant trop peu profond est agrandi par le déplacement de la façade. La nouvelle façade, très transparente, profite largement du patio paysagé et rend le hall et l’accès au bâtiment très visibles depuis l’espace public.

Le remplacement de la façade existante par une façade qualitative, contemporaine, transparente et lumineuse, reprenant une trame de 1,35 m entre les trames structurelles existantes, apportant ainsi une flexibilité optimale et un éclairage naturel très qualitatif aux espaces de bureaux, et thermiquement performante.

Un immeuble totalement rénové, performant et flexible : reconfiguration des circulations verticales, permettant de maximiser les capacités d’accueil de l’immeuble, équipements techniques lui conférant toutes les caractéristiques d’un immeuble innovant de haute qualité environnementale,  parvis et terrasses paysagées en rez-de-chaussée et en toiture.

Maître d’ouvrage : FULTON / immeuble racheté par ARTEA
Mission : Conception
Adresse : 132 rue des 3 Fontanot, 92000 Nanterre
Équipe maîtrise d’œuvre : Khephren (BET Structure), Sinteo (BET Fluides, BET Environnement, AMO HQE), DAL (Économiste), Meta (Acoustique), VP & Green Engineering (BET Façade), Atelier Format Paysage (Paysagiste), Agence VBI (MOEX)
Surface : 8 000 m2 SDP
Calendrier : Livré en 2019
Certifications : HQE niveau Exceptionnel, BBC Rénovation 2009
Équipe projet au sein de l’agence LBBA : Stefano Rubertone, Benoît Marchal, Antoine Tournay, Anne Hossenlopp
Photographies : 11H45

Téléchargez le livret A5.

Avenue de France
Barbette
François Ory
So Pop
157 Charles de Gaulle
Pergolèse
168 Charles de Gaulle
Chrysalide
Kupka C
21-29 rue des 3 Fontanot LBB Architecture ©11H45
Les terrasses de Nanterre
Masséna-Richelieu
Bordeaux – Parking Gare TGV
Le Loft l’Oréal
Cahier LBBA-LabDesign
Monographie LBB
Dreamview
Sense // La Norma
Clichy – ZAC Centre-Ville – La Villa
Clichy – ZAC Centre-Ville – La Nano Tour
Clichy – ZAC Centre-Ville
Clichy – ZAC Centre-Ville – L’angle
Médecins sans frontières
32 Guersant
Cœur Vert
Cœur Vert
Îlot B
Fondation-s
Ancien siège Canal + par Richard Meier
Bordeaux // Parking de l’Ars
Docks L4 et Halle Dumeste
Issy Préférence
Val d’Europe
Pixel
Meyerbeer
Cœur Vert
Port à L’Anglais – Quai Jules Guesde
Alençon
Bruxelles
Lasse
Tissages
Paysage
Bagnolet
Boulevard des Batignolles
Totem
164 Peretti
Semavip
Libertis 2
104 Charles de Gaulle
Lot T
L’agence
Concept Store
Signalétique
Le Carré LBBA
Le Carré LBBA n°2
Docks B1
Tour Hachette
Parking de l’Hôtel de Ville
Docks L1 L2 L3
Docks L3
Île Vertime
4 Temps
Sables d’Olonne
Lyon – La Buire
Nancy Brabois
Malesherbes
ADN Territoire
34 rue Guersant
Tour Aurore – La Défense
Libertis 1
Opéra
L’Oréal
Montigny
Eurodisney
Rue de l’Ouest
Créteil
La Boivre
Espace Landowski
Nous utilisons des cookies sur notre site Web pour vous offrir l'expérience la plus pertinente en mémorisant vos préférences et en répétant vos visites. Vous pouvez consentir ou non à l'utilisation des cookies. mais vous pouvez aussi cliquer « Paramètres des cookies » pour fournir un consentement contrôlé.
Paramètres des cookiesTout rejeterTout accepter
réviser le consentement

Confidentialité

Ce site Web utilise des cookies pour améliorer votre expérience lorsque vous naviguez sur le site Web. Parmi ceux-ci, les cookies classés comme nécessaires sont stockés sur votre navigateur car ils sont essentiels au fonctionnement des fonctionnalités de base du site Web. Nous utilisons également des cookies tiers qui nous aident à analyser et à comprendre comment vous utilisez ce site Web. Ces cookies ne seront stockés dans votre navigateur qu'avec votre consentement. Vous avez également la possibilité de désactiver ces cookies. Mais la désactivation de certains de ces cookies peut affecter votre expérience de navigation.
Nécessaire
Toujours activé
Les cookies nécessaires sont absolument essentiels au bon fonctionnement du site Web. Ces cookies assurent les fonctionnalités de base et les fonctions de sécurité du site Web, de manière anonyme.
CookieDuréeDescription
cookielawinfo-checkbox-advertisement1 anDéfini par le plugin GRPD Cookie Consent, ce cookie est utilisé pour enregistrer le consentement de l'utilisateur pour les cookies de la catégorie « Publicité ».
cookielawinfo-checkbox-analytics11 moisCe cookie est défini par le plugin GRPD Cookie Consent. Le cookie est utilisé pour stocker le consentement de l'utilisateur pour les cookies dans la catégorie « Analytics ».
cookielawinfo-checkbox-autres1 yearSet by the GDPR Cookie Consent plugin plugin to store the user consent for cookies in the category "Others".
cookielawinfo-checkbox-functional11 moisLe cookie est défini par le consentement des cookies GRPD pour enregistrer le consentement de l'utilisateur pour les cookies dans la catégorie « Fonctionnel ».
cookielawinfo-checkbox-necessary11 moisCe cookie est défini par le plugin GRPD Cookie Consent. Les cookies sont utilisés pour stocker le consentement de l'utilisateur pour les cookies dans la catégorie « Nécessaire ».
cookielawinfo-checkbox-performance11 moisCe cookie est défini par le plugin GRPD Cookie Consent. Le cookie est utilisé pour stocker le consentement de l'utilisateur pour les cookies dans la catégorie « Performance ».
viewed_cookie_policy11 moisLe cookie est défini par le plugin GRPD Cookie Consent et est utilisé pour stocker si l'utilisateur a consenti ou non à l'utilisation de cookies. Il ne stocke aucune donnée personnelle.
Fonctionnel
Les cookies fonctionnels aident à exécuter certaines fonctionnalités telles que le partage du contenu du site Web sur les plateformes de médias sociaux, la collecte de commentaires et d'autres fonctionnalités tierces.
CookieDuréeDescription
filtre1 moisPermets de garder en mémoires les filtres (type de projets) séléctionnés.
NID6 moisPar google.com. Cookie de préférence. Utilisé pour stocker les préférences dans un identifiant Google unique pour mémoriser vos informations, telles que votre langue préférée (par exemple l'anglais), le nombre de résultats de recherche que vous souhaitez afficher par page (par exemple 10 ou 20), et si vous souhaitez ou non avoir Le filtre SafeSearch de Google est activé. Ces préférences peuvent être utilisées pour une publicité optimisée et / ou personnalisée sur les réseaux Google.
Performance
Les cookies de performance sont utilisés pour comprendre et analyser les indices de performance clés du site Web, ce qui contribue à offrir une meilleure expérience utilisateur aux visiteurs.
CookieDuréeDescription
_gat1 minuteCe cookie est installé par Google Universal Analytics pour restreindre le taux de demande et ainsi limiter la collecte de données sur les sites à fort trafic.
Analytics
Les cookies analytiques sont utilisés pour comprendre comment les visiteurs interagissent avec le site Web. Ces cookies aident à fournir des informations sur le nombre de visiteurs, le taux de rebond, la source de trafic, etc.
CookieDuréeDescription
_ga2 ansLe cookie _ga, installé par Google Analytics, calcule les données des visiteurs, des sessions et des campagnes et assure également le suivi de l'utilisation du site pour le rapport d'analyse du site. Le cookie stocke des informations de manière anonyme et attribue un numéro généré de manière aléatoire pour reconnaître les visiteurs uniques.
_gid1 jourInstallé par Google Analytics, le cookie _gid stocke des informations sur la façon dont les visiteurs utilisent un site Web, tout en créant également un rapport d'analyse des performances du site Web. Certaines des données collectées incluent le nombre de visiteurs, leur source et les pages qu'ils visitent de manière anonyme.
AID2 ansFonction et objectif, ce cookie de Google Analytics relie vos activités sur d'autres appareils auxquels vous vous êtes déjà connecté à l'aide de votre compte Google. Sur cette base, les publicités que vous voyez sur vos appareils sont coordonnées et les événements de conversion sont mesurés.
CONSENT2 ansYouTube définit ce cookie via des vidéos youtube intégrées et enregistre des données statistiques anonymes.
DSID2 semainesPlacé par Google DoubleClick pour stocker les préférences de l'utilisateur. Le but est : Marketing/suivi
IDE3 semainesLe cookie est placé par : Google DoubleClick La fonctionnalité est : pour fournir la diffusion d'annonces ou le reciblage. Le but est le Marketing/Tracking
Publicité
Les cookies publicitaires sont utilisés pour fournir aux visiteurs des publicités et des campagnes marketing pertinentes. Ces cookies suivent les visiteurs sur les sites Web et collectent des informations pour fournir des publicités personnalisées.
CookieDuréeDescription
__Secure-3PAPISID2 ansPar google.com. Utilisé à des fins de ciblage pour créer un profil des intérêts du visiteur du site afin d'afficher une publicité Google pertinente et personnalisée.
__Secure-3PSID2 ansPAr google.com. Utilisé à des fins de ciblage pour créer un profil des intérêts du visiteur du site afin d'afficher une publicité Google pertinente et personnalisée.
__Secure-3PSIDCC1 anPar google.com. Utilisé à des fins de ciblage pour créer un profil des intérêts du visiteur du site afin d'afficher une publicité Google pertinente et personnalisée. Durée: 1 an
DSID2 semainesPlacé par Google DoubleClick pour stocker les préférences de l'utilisateur. Le but est : Marketing/suivi
IDE3 semainesLe cookie est placé par : Google DoubleClick La fonctionnalité est : pour fournir la diffusion d'annonces ou le reciblage. Le but est le Marketing/Tracking
NID6 moisPar google.com. Cookie de préférence. Utilisé pour stocker les préférences dans un identifiant Google unique pour mémoriser vos informations, telles que votre langue préférée (par exemple l'anglais), le nombre de résultats de recherche que vous souhaitez afficher par page (par exemple 10 ou 20), et si vous souhaitez ou non avoir Le filtre SafeSearch de Google est activé. Ces préférences peuvent être utilisées pour une publicité optimisée et / ou personnalisée sur les réseaux Google.
VISITOR_INFO1_LIVE5 mois 27 joursCookie défini par YouTube pour mesurer la bande passante qui détermine si l'utilisateur obtient la nouvelle ou l'ancienne interface du lecteur.
YSCsessionLe cookie YSC est défini par Youtube et est utilisé pour suivre les vues des vidéos intégrées sur les pages Youtube.
yt-remote-connected-devicesjamaisYouTube définit ce cookie pour stocker les préférences vidéo de l'utilisateur utilisant la vidéo YouTube intégrée.
yt-remote-device-idjamaisYouTube définit ce cookie pour stocker les préférences vidéo de l'utilisateur utilisant la vidéo YouTube intégrée.
yt.innertube::nextIdjamaisCe cookie, défini par YouTube, enregistre un identifiant unique pour stocker des données sur les vidéos de YouTube que l'utilisateur a vues.
yt.innertube::requestsjamaisCe cookie, défini par YouTube, enregistre un identifiant unique pour stocker des données sur les vidéos de YouTube que l'utilisateur a vues.
Autres
Les autres cookies non catégorisés sont ceux qui sont en cours d'analyse et n'ont pas encore été classés dans une catégorie.
non-indispensable
Enregistrer & appliquer
Propulsé par CookieYes Logo